「アトリエ賃貸推進プロジェクト」の記事を見た建築家からの連絡
今年(2022年)のGW中、ある建築家から「東京都品川区で複合ビルを所有するオーナーから、物件の一部(約100㎡)をリノベーションする相談があり、その用途としてアトリエ付き賃貸住宅を検討しています。この件で一度御社とご相談できないかと思いご連絡しました」というメールを頂戴しました。
建築家は株式会社アット・ピース・アーキテクツの代表をしておられる島田浩由さんで、「アトリエ賃貸推進プロジェクト」の連載記事を読んで興味を持ってくださったとのこと。こういうご相談は本当に嬉しいです。
すぐさま「是非詳しい話を聞かせてください」と返事をしましたら、GWにもかかわらず何度もメールのやりとりが続き、その流れで「横浜市営地下鉄ブルーライン『吉野町』駅(横浜市南区)で2020年に新築したアトリエ賃貸があるのですが、ちょうど空きが出ているのでワクワク賃貸で紹介してもらえないでしょうか?」という相談も加えてくださいました。
さっそく送っていただいた資料を拝見したところ、昨年(2021年)、Vol.003(アトリエ・工房がついた賃貸住宅「キャンバスハウス」シリーズ建築中!)という記事でご紹介した物件とコンセプトを同じくしていて、しかも同じ駅だったのでびっくり! 何かに導かれている気がして(オーバーでしょうか?笑)これは是非とも皆様にご紹介せねば思い、GWが明けて早々に取材に伺いました。
クリエイターズ五軒長屋のご紹介

「クリエイターズ五軒長屋」の外観。
島田さんが設計し、2020年に完成した物件は「クリエイターズ五軒長屋」といい、戸建て感覚で暮らせるメゾネット住宅が5棟連なる木造建物です。
貸主さんはすぐ近くで建材屋を営んでおられる方で、「普通のアパートを建てるのではつまらないし、入居者も少ないだろう」と考え島田さんにプランニングを相談。島田さんの提案で、クリエイターの方々がものづくりをしながら暮らせる「職住一体」型賃貸住宅が企画されました。
オーナーさん、島田さんの意図は見事的中し、美術作家さん、舞台美術家さん、内装業者さんなど、ものづくりをして生計を立てている方たちですぐ満室に!
最近になってアトリエ付き住宅を新築し引っ越していかれた方が現れるなどして2部屋(3号室と5号室)が空き、ちょうど募集を始めたところだということですので、募集条件も含めて詳しくご紹介いたします(※募集条件等は2022年5月時点のものです)。

「クリエイターズ五軒長屋」3号室の1Fアトリエ。

「クリエイターズ五軒長屋」5号室の1Fアトリエ。
「クリエイターズ五軒長屋」の一番の特徴は1階に設けられたアトリエ・工房スペースです。
3号室の床は土間になっていて、汚れをさほど気にせず創作活動に打ち込むことができます。
5号室も当初は土間でしたが、退去された美術作家の方が寒さ対策としてご自分でフローリングを張られました。島田さんいわく「こちらも汚すことはあまり気にしないでいただいて大丈夫です」。ものづくりをされる方にはありがたい話ですね!

アトリエの壁はヒノキの合板。
「汚れを気にしないでいい」というのは壁も同様。「クリエイターズ五軒長屋」では入居者さんがDIYをすることが認められていて、ヒノキの合板が貼られた壁には釘を打っても構わないとのこと。
理由を訊ねましたら「だってオーナーは建材屋ですから(笑)」(島田さん)。
この自由度の高さは魅力的です。

アトリエに備えられた流し台と棚。
アトリエには専用の流し台もついています。シンクが深めで、お湯も出る流し台は、絵筆など制作用具を洗うのにも役立ちますが、ちょっと手を洗いたくなったり、珈琲を飲みたくなったりしたときにも便利。アトリエに水場があるとないとでは大違いですよね。

1Fアトリエにあるシャワートイレ。
アトリエにはトイレもついていて、制作中すぐに入れるのがありがたいし、アトリエに作品を展示してギャラリー的に使ったり、絵画教室やワークショップを開いたりするときもきっと重宝するはず。ホント、よく考えられています。

アトリエの収納。
トイレの横には収納スペースもあります。
階段下の空間を使っているので、上部までまるまる使えるわけではないけれど、人様にあまりお見せしたくないものをしまっておくのにきっと便利。
先ほど流し台を紹介したところでは触れなかったのですが、流し台の横に収納棚があるのも気が利いているなと思いました。
それでもさらに収納棚が必要ならば、自分でつくってしまう手があります。何せDIYが認められている空間ですから!

照明はライティングレールが用意されている。
天井照明にはライティングレールが設けられていて、自分が必要な分だけライトを増やせます。照明の角度を自由に変えられるのもありがたいですね。

作品展示もできる大きな窓がある入口部分。
入口側の壁面は大きな窓になっています。
設計した島田さんにその理由を訊ねましたら、「自分の作品を展示したいというクリエイターもいるだろうと考えました。ここをギャラリーにしたり、ショップにしたりしていただいても構いません」。
なるほど~、よく練られた企画だと思います。
なお、音の出る作業も許容度は大きい模様です。
「オーナーがそばで建材屋をやっていて、そこそこ大きな音を出しておられます。また、ここは準工業地域ですから、ご近所さんも音に関してはさほどやかましくは言われません」(島田さん)。
彫刻は難しいかもしれませんが、革製品や彫金作品をつくる程度なら問題なしとのことでした。
もう1点、アトリエの電気容量について、「陶芸用の電気釜で大きな電圧が必要だという方もおられるかと思い、200V対応にしてあります」(島田さん)という情報もいただきました。
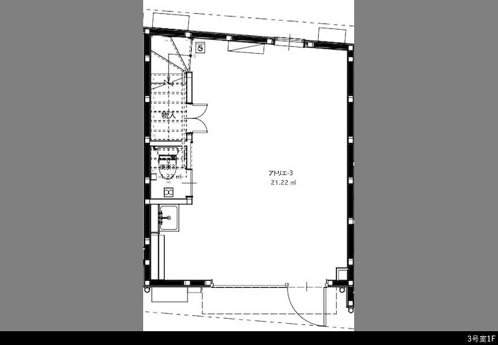
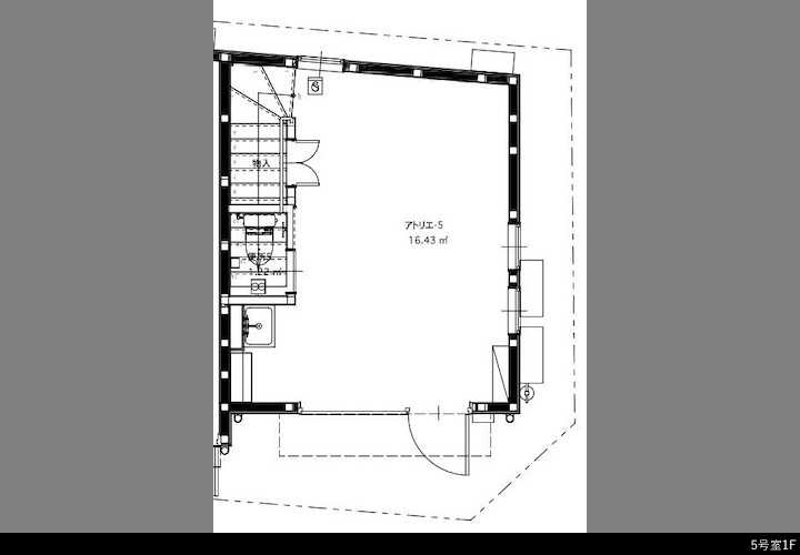
[3号室の間取図]
[5号室の間取図]
続いて、部屋全体もご紹介しておきましょう。 「クリエイターズ五軒長屋」は3号室、5号室ともに1Fはアトリエ、2FはLDKになっていて、ロフトもついています。
3号室は49.54㎡(ほかにロフト7.85㎡)、5号室は39.28㎡(ほかにロフト6.17㎡)という広さです。
5号室は3号室にくらべ一回り小さく、2Fにトイレがない点が違っています。ただし角部屋ですし、小さい分、家賃(※後でご紹介します)も安いので、人気は分かれるかもしれませんね。
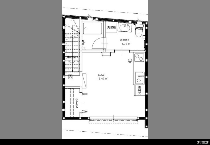
[3号室2F&ロフトの室内写真]
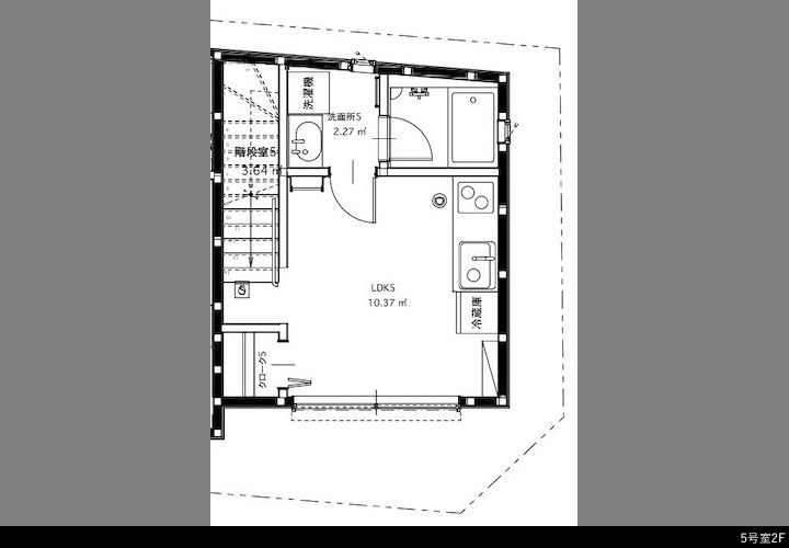
[5号室2F&ロフトの室内写真]
3号室、5号室の室内写真はスライド形式でご紹介します。
LDKは2室ともロフトがある分、天井が高く開放的なので、専有面積以上に広く感じられます。
ロフトは寝室スペースにすると良い感じ。
キッチンは3口ガスコンロでグリルもついています。
お風呂は追焚き機能と乾燥機がついていて、エアコンは2Fにも設置されていました。
バルコニーがないことを気にする方がいるかもしれませんが、洗濯物を干すときは窓辺にある室内物干しか、浴室乾燥機を使っていただければカバーできるかと思います。
全体的に無駄がなく、使い勝手がよく考えられた建物という印象です。
「クリエイターズ五軒長屋」の最寄り駅は横浜市営地下鉄ブルーライン「吉野町」駅で、歩いて9分という距離です。
近くには睦町公園、中村公園(プールもあり!)など緑豊かな公園があり、買い物は「まいばすけっと横浜中村橋店」を使うのが良さそう(徒歩4分)。すぐそばにある「桜湯」は銭湯好きには魅力的なスポットです。

「クリエイターズ五軒長屋」の外観。
さて、気になるお家賃ですが、本記事を配信した時点(※2022年5月)では、3号室が112,000円、5号室が99,000円となっています(管理費はともに3,000円)。
敷金、礼金は1ヵ月ずつで、火災保険への加入が義務付けられています。
記事をご覧になって「一度内見してみたい!」と思われた方は、「空き待ち」登録のページからお申込みください。すぐに案内をセッティングいたします。
アット・ピース・アーキテクツとの連携

アット・ピース・アーキテクツの島田浩由さん。
アット・ピース・アーキテクツの島田浩由さんが設計された「クリエイターズ五軒長屋」はいかがでしたでしょうか?
島田さんはこれまでも新築またはリノベーションでアトリエ賃貸を設計してこられましたが、今後も積極的に検討していきたいそうです。
私はGW明けにすでに2度もお会いしていて、2回目のときは「クリエイターズ五軒長屋」のオーナーさんのほか、横浜市内でたくさんの土地を所有しておられる地主さんともお引き合わせくださったのですが、設計の技術やアイディアはもちろん、明るく気さくな性格、こまめな仕事ぶりを高く評価されていて、地主さんとはアトリエ賃貸の新築話でも盛り上がりました。
この連載を通して、こうした広がりを持てていくのは本当にありがたく嬉しいことです。
島田さんがおつくりになるアトリエ賃貸の物件情報も随時ご紹介してまいりますので、どうぞご期待ください。
[島田浩由さんのプロフィール]
株式会社アット・ピース・アーキテクツ 代表取締役。
一級建築士(大臣 第273506号)。
1967年、東京都葛飾区生まれ。
1990年、明治大学工学部建築学科卒業後、三井ホーム株式会社に就職(1996年にU&A研究所へ出向)。
その後、(株)サンコミュニケーションズ、住友不動産株式会社勤務を経て、2009年に一級建築士事務所アット・ピース・アーキテクツを設立(2014年に法人化)。
2021年に本社を東京都中央区日本橋本町に移転。
URL: https://www.at-peace-architects.com/
文:久保田大介
